
Moderne Büroflächen in sehr guter Lage Wiesbaden Erbenheim **Provisionsfrei**
65205 Wiesbaden, Büro/Praxis zur Miete
Kontaktdaten
-
NameHerr Peter Langer
-
FirmaSteinbauer Immobilien GmbH
-
AnschriftBierstadter Straße 7
65189 Wiesbaden -
E-Mail
-
E-Mail
-
Telefon
-
Fax+49 611 98951-18
- zum Kontaktformular
Objektdaten
-
Objekt-ID170396
-
ObjekttypBüro/Praxis
-
Adresse65205 Wiesbaden
(Wiesbaden (Erbenheim)) -
Nutzfläche ca.937 m²
-
Bürofläche ca.937 m²
-
Gesamtfläche ca.937 m²
-
Gastrofläche ca.937 m²
-
Baujahr1999
-
Verfügbar abAb sofort, bzw. nach Vereinbarung
-
MieterprovisionProvisionsfrei für den Mieter! 0 zzgl. MwSt.
-
Nettokaltmiete8,90 EUR
-
Warmmiete11,50 EUR
Objektbeschreibung
Beschreibung
Es handelt sich hierbei um ein modernes und äußerst gepflegtes Bürohaus mit repräsentativem Entrée. Das Objekt wurde in qualitativ hochwertiger und vor allem energiesparender Bauweise erstellt. Die Fläche wird in einem renoviertem Zustand übergeben. Änderungen an der bestehenden Raumaufteilung können bei Bedarf berücksichtigt werden.
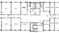
AUFTEILUNG
Gemäß Grundrissplan
Ausstattung
Es handelt sich hierbei um ein modernes und äußerst gepflegtes Bürohaus mit repräsentativem Entrée. Das Objekt wurde in qualitativ hochwertiger und vor allem energiesparender Bauweise erstellt. Die Flächen sind momentan an einen Gesamtnutzer vermietet, der seine Arbeitsbereiche über die drei Geschosse verteilt hat. Demnach eignen sich die Räumlichkeiten hervorragend für die Nutzung als Büroflächen, es ist jedoch eine variable Raumaufteilung möglich!
Hier nur einige Ausstattungsmerkmale:
- Tiefgarage und Außenstellplätze
- Fahrstuhl
- Barrierefrei
- Teeküche
- bodentiefe Fenster
- Teppichboden
- CAT-7-Verkabelung
- Glasfaserleitung
- Teppichboden, Fliesen
Sonstiges
FLÄCHEN
Bürofläche1. Obergeschossca. 584 m²
Teilbar ab 231 m²
Bürofläche2. Obergeschossca. 353 m²
Teilung möglich
Anmietung von Einzelbüros oder Co-Working Räume im EG möglich.
MIETE
Bürofläche:8,90 EUR / m² / mtl.
Nebenkosten:2,60 EUR / m² / mtl.
PKW-Stellplatz:55,00 EUR / Stück / mtl.
jeweils zzgl. MwSt. in gesetzlicher Höhe
KAUTION
3 Bruttomonatsmieten per Bankbürgschaft
PROVISION
Die Anmietung von Flächen in diesem Gebäude ist für den Mieter provisionsfrei.
BEZUG
Ab sofort, bzw. nach Vereinbarung
PKW-STELLPLÄTZE
Zur Anmietung stehen 3 Außenstellplätze sowie 5–6 Stellplätze in der Tiefgarage zur Verfügung.
Lage
Das Objekt liegt in Wiesbaden-Erbenheim inmitten des Gewerbemischgebiets Kreuzberger Ring. Im Umfeld sind Verwaltungsbüros der unterschiedlichsten internationalen und nationalen Unternehmen angesiedelt. Der Kreuzberger Ring hat eine sehr gute Anbindung an die BAB A66, A671. Gute Infrastruktur im Umfeld. Verschiedene Einzelhandelsunternehmen, Restaurants und der Ortskern Wiesbaden-Erbenheim sind fußläufig zu erreichen.
Wenn Sie die Immobilien-Karte anzeigen, übertragen Sie Daten an Google Maps (Datenschutzerklärung).
65205 Wiesbaden (auf Google Maps ansehen)








