
Attraktive Bürofläche im Erdgeschoss – Ruhig, zentral und repräsentativ am Kurpark *Provisionsfrei*
65189 Wiesbaden, Bürofläche zur Miete
Kontaktdaten
-
NameHerr Peter Langer
-
PositionLeiter Investment und Projektentwicklung
-
FirmaSteinbauer Immobilien GmbH
-
AnschriftBierstadter Straße 7
65189 Wiesbaden -
E-Mail
-
E-Mail
-
Telefon
-
Telefon
-
Mobil
-
Fax00496119895118
- zum Kontaktformular
Objektdaten
-
Objekt-ID2120/E1
-
ObjekttypenBüro/Praxis, Bürofläche
-
Adresse65189 Wiesbaden
-
EtageEG
-
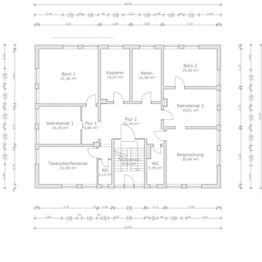
Bürofläche ca.201,58 m²
-
Gesamtfläche ca.281,08 m²
-
Lagerfläche ca.79,50 m²
-
Stellplätze5
-
Verfügbar absofort
-
Miete pro m²14,50 EUR
-
Warmmiete17,50 EUR
Ausstattung / Merkmale
- ✓ Stellplatz
Objektbeschreibung
Kurzbeschreibung
Steubenstraße 5, 65189 Wiesbaden
Beschreibung
Zur Vermietung steht eine hochwertig ausgestattete Büroeinheit im Erdgeschoss eines freistehenden, äußerst gepflegten Geschäftshauses in bester Innenstadtlage. Die Einheit überzeugt mit einem stimmigen Gesamtkonzept aus moderner Funktionalität, lichtdurchfluteten Räumen und angenehmem Arbeitsambiente.
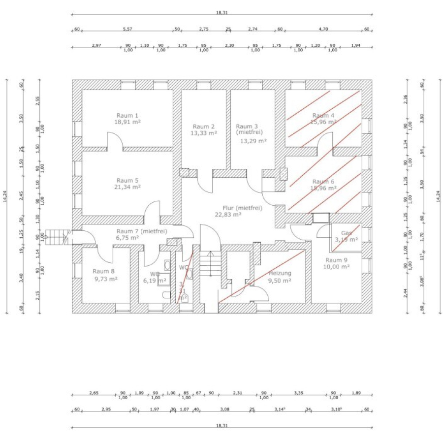
Die Büroeinheit im Erdgeschoss verfügt über eine durchdachte und funktionale Raumaufteilung mit einer Gesamtfläche von rund 200 m². Die Räume sind ideal geeignet für eine klassische Büroorganisation mit getrennten Arbeits- und Besprechungsbereichen, Sekretariaten sowie Nebenräumen. Alle Flächen sind hell, gut belichtet und über den zentral gelegenen Flur effizient erschlossen.
Ausstattung
Hier nur einige Ausstattungsmerkmale:
- CAT-5-Verkabelung für schnelle Datenverbindungen
- Getrennte Damen- und Herren WCs für Mitarbeiter und Besucher
- Voll ausgestattete Teeküche
- Teppichboden in den Büros, pflegeleichter PVC-Boden in Holzoptik im Flurbereich
- Innenliegender Sonnenschutz für blendfreies Arbeiten
- Abgehängte Decken mit integrierter Beleuchtung
- Klimatisierter Serverraum im Untergeschoss für IT-Infrastruktur
- Ladestation für E-Fahrzeuge am überdachten Stellplatz
- Alarmanlage zu Objektsicherung
Die Büroeinheit bietet somit nicht nur eine repräsentative Außenwirkung, sondern erfüllt auch alle Anforderungen an ein modernes, effizient ausgestattetes Arbeitsumfeld.
Sonstiges
Bürofläche im Erdgeschoss ca. 201,58 m²
Archivfläche im Untergeschoss ca. 79,50 m² (Archiv / Lager / Technik) 86,25 m² (gesamt nutzbar)
„Die Archivflächen müssen nicht vollständig mit angemietet werden – auch eine teilweise oder keine Anmietung ist möglich.“
Bürofläche: 14,50 € / m² / mtl.
Archivfläche: 5,50 € / m² / mtl.
Nebenkosten: 3,00 € / m² / mtl.
Außenstellplatz (überdacht): 120,00 € / Stk. / mtl.
Außenstellplatz: 100,00 € / Stk. / mtl.
Es wird keine Mehrwertsteuer ausgewiesen
Lage
Das Objekt befindet sich in erstklassiger Stadtlage direkt am Kurpark, angrenzend an die Paulinenstraße und nur wenige Fußminuten vom Wiesbadener Kurhaus entfernt. Auch die beliebte Wilhelmstraße mit vielfältigen Einkaufs- und Versorgungsmöglichkeiten ist bequem fußläufig erreichbar. Die Umgebung ist geprägt von repräsentativen Altbauten mit hochwertiger Wohn- und Büronutzung – ideal für Unternehmen, die ein anspruchsvolles und seriöses Umfeld suchen.
Wenn Sie die Immobilien-Karte anzeigen, übertragen Sie Daten an Google Maps (Datenschutzerklärung).
65189 Wiesbaden, Deutschland (auf Google Maps ansehen)















