
Helle, kompakte Bürofläche im 4. OG in der Bahnhofstraße **Provisionsfrei**
65185 Wiesbaden, Bürofläche zur Miete
Kontaktdaten
-
NameHerr Peter Langer
-
PositionLeiter Investment und Projektentwicklung
-
FirmaSteinbauer Immobilien GmbH
-
AnschriftBierstadter Straße 7
65189 Wiesbaden -
E-Mail
-
E-Mail
-
Telefon
-
Telefon
-
Mobil
-
Fax00496119895118
- zum Kontaktformular
Objektdaten
-
Objekt-ID190299-009-8
-
ObjekttypenBüro/Praxis, Bürofläche
-
Adresse65185 Wiesbaden
-
Etage4
-
Etagen im Haus6
-
Bürofläche ca.404 m²
-
Gesamtfläche ca.404 m²
-
Teilbar ab202 m²
-
Mieterprovision (gewerblich)Die Anmietung von Flächen in diesem Gebäude ist für den Mieter provisionsfrei.
-
Nettokaltmiete14,00 EUR
-
Miete pro m²14,00 EUR
-
Summe Miete netto14,00 EUR
-
Nebenkosten4,00 EUR
-
Warmmiete18,00 EUR
Ausstattung / Merkmale
- ✓ Kabelfernsehen
- ✓ Personenaufzug
Objektbeschreibung
Kurzbeschreibung
Bürofläche Bahnhofstraße 55–57 in 65185 Wiesbaden
Beschreibung
Es handelt sich hierbei um ein 6-geschossiges Bürohaus mit Läden im Erdgeschoss. Die Bürofläche kann wahlweise über einen der beiden Personenaufzüge oder über das Treppenhaus erreicht werden. Die Raumaufteilung ist dank Leichtbauwänden flexibel gestaltbar.
Ausstattung
Weitere Ausstattungsmerkmale sind:
- Grauer Teppichboden
- Teeküche im 4. und 5. OG
- WC-Anlagen: 2 Damen- und 2 Herren-WCs im 5. OG,
- 4. OG: 2 Damen- und 2 Herren-WCs sowie zusätzlich separate Damen- und Herren-WCs und eine weitere Teeküche
- Klimatisierung
- CAT 5E-Verkabelung
- Kabelkanäle
- Beleuchtung entsprechend BAP-Richtlinien
- Zwei Personenaufzüge
- Außenliegender Sonnenschutz
- Fenster, die geöffnet werden können
Sonstiges
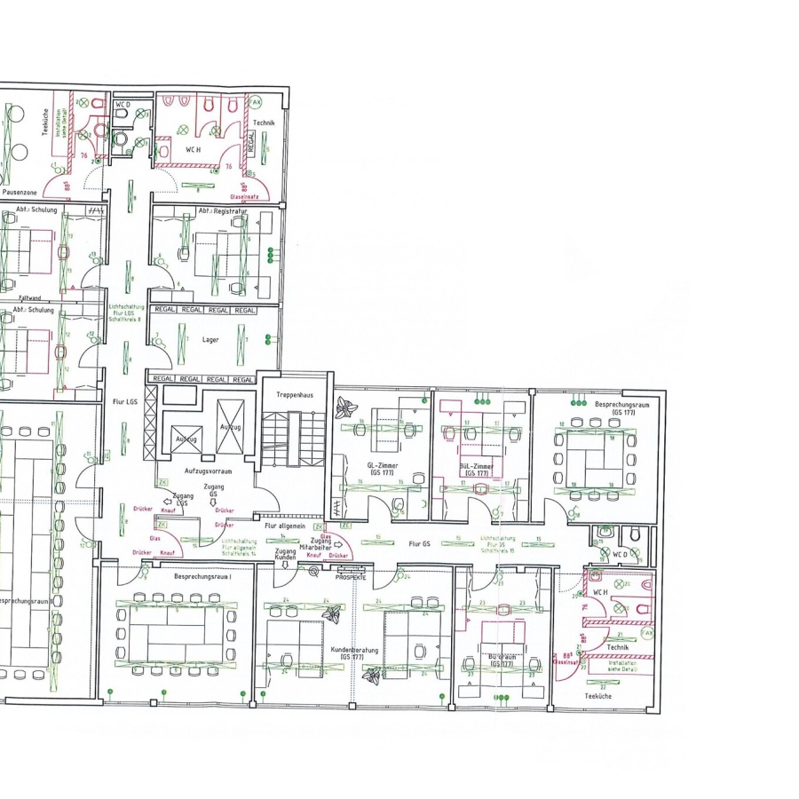
Aufteilung gemäß beiliegendem Grundrissplan. Die Raumaufteilung kann in
Absprache mit dem Eigentümer verändert werden.
Büro-/Praxisfläche im 4. Obergeschoss ca. 404,00 m².
Weitere Büro-/Praxisfläche zur Anmietung (auch komplett möglich) im 5. Obergeschoss ca. 404,00 m².
Die Büroflächen sind jeweils hälftig teilbar.
Bürofläche: 13,50 € – 14,00 € / m² / mtl.
Nebenkosten: 4,00 € / m² / mtl.
TG-PKW-Stellplatz: 120,00 € / Stück /mtl.
Es wird keine MwSt. ausgewiesen!
Lage
Dieses Objekt befindet sich in hervorragender Innenstadtlage; Hauptbahnhof und Innenstadt sind nur wenige Fußminuten entfernt. Die nächstgelegene Bushaltestelle ist ebenfalls bequem per Fuß erreichbar. In unmittelbarer Nähe sind zahlreiche Restaurants und vielfältige Einkaufsmöglichkeiten vorhanden.
Wenn Sie die Immobilien-Karte anzeigen, übertragen Sie Daten an Google Maps (Datenschutzerklärung).
65185 Wiesbaden, Deutschland (auf Google Maps ansehen)



















