
Vielseitig nutzbare Bürofläche in Wiesbaden-Kohlheck **Provisionsfrei**
65199 Wiesbaden, Bürofläche zur Miete
Kontaktdaten
-
NameHerr Peter Langer
-
PositionLeiter Investment und Projektentwicklung
-
FirmaSteinbauer Immobilien GmbH
-
AnschriftBierstadter Straße 7
65189 Wiesbaden -
E-Mail
-
E-Mail
-
Telefon
-
Telefon
-
Mobil
-
Fax00496119895118
- zum Kontaktformular
Objektdaten
-
Objekt-ID1866/E1/Eh1
-
ObjekttypenBüro/Praxis, Bürofläche
-
Adresse65199 Wiesbaden
-
EtageEG
-
Bürofläche ca.158,70 m²
-
Zustandgepflegt
-
Verfügbar absofort
-
Mieterprovision (gewerblich)Die Anmietung ist für den Mieter provisionsfrei.
-
Kaution3 Bruttomonatsmieten per Bankbürgschaft
-
Miete pro m²10,00 EUR
-
Warmmiete12,70 EUR
Objektbeschreibung
Kurzbeschreibung
Greifstraße 8, 65199 Wiesbaden
Beschreibung
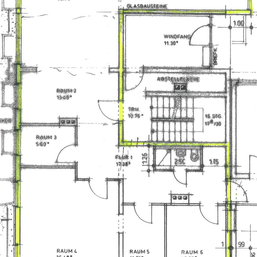
Die angebotene Fläche befindet sich im Erdgeschoss eines gepflegten Wohn- und Geschäftshauses und verfügt über zwei separate, ebenerdige Eingänge, was eine flexible Nutzung sowie eine gute Erreichbarkeit gewährleistet.
Herzstück der Einheit ist ein großzügiger, ca. 55 m² großer Raum, der sich vielseitig nutzen lässt – ideal beispielsweise als Büro, Praxis- oder Arbeitsfläche. Ergänzt wird das Raumangebot durch einen weiteren großen Büroraum mit einem angenehmen, ruhigen Blick ins Grüne sowie zwei zusätzliche, kleinere Büroräume, die sich optimal als Einzelbüros oder Besprechungsräume eignen.
Ein Anschluss für eine Teeküche ist vorhanden und ermöglicht eine unkomplizierte Einrichtung. Zudem steht ein WC mit integrierter Dusche zur Verfügung.
Die durchdachte Raumaufteilung in Kombination mit der ruhigen Lage macht diese Fläche besonders attraktiv für unterschiedlichste gewerbliche Nutzungskonzepte.
Ausstattung
- Steinboden im Ausstellungsraum
- PVC-Belag in Holzoptik in den Büroräumen
- Abgehängte Decken mit integrierter Beleuchtung
- Deckenhöhe ca. 3 m
- Wände mit Glasfasertapete
- WC mit Dusche
- Teeküchenanschluss
- CAT-Verkabelung
- Innenjalousien
Lage
Das Objekt befindet sich am westlichen Stadtrand von Wiesbaden im beliebten Stadtteil Kohlheck, direkt am grünen Übergang zum Vordertaunus. Die naturnahe Umgebung bietet eine hohe Lebensqualität und lädt zu Spaziergängen und Freizeitaktivitäten im Grünen ein. Gleichzeitig überzeugt der Standort durch eine gute Infrastruktur: In der direkten Umgebung befinden sich Einkaufsmöglichkeiten, eine Bäckerei sowie eine Postfiliale.
Eine Bushaltestelle liegt nur wenige Schritte entfernt und ermöglicht eine schnelle Verbindung in die Wiesbadener Innenstadt sowie zu weiteren relevanten Zielen der Umgebung.
Wenn Sie die Immobilien-Karte anzeigen, übertragen Sie Daten an Google Maps (Datenschutzerklärung).
65199 Wiesbaden, Deutschland (auf Google Maps ansehen)










