
Lichtdurchflutete Büroeinheit mit exzellenter Verkehrsanbindung **Provisionsfrei**
65187 Wiesbaden, Bürofläche zur Miete
Kontaktdaten
-
NameHerr Peter Langer
-
PositionLeiter Investment und Projektentwicklung
-
FirmaSteinbauer Immobilien GmbH
-
AnschriftBierstadter Straße 7
65189 Wiesbaden -
E-Mail
-
E-Mail
-
Telefon
-
Telefon
-
Mobil
-
Fax00496119895118
- zum Kontaktformular
Objektdaten
-
Objekt-ID1117/E5/Eh2
-
ObjekttypenBüro/Praxis, Bürofläche
-
Adresse65187 Wiesbaden
-
Etage84
-
Etagen im Haus3
-
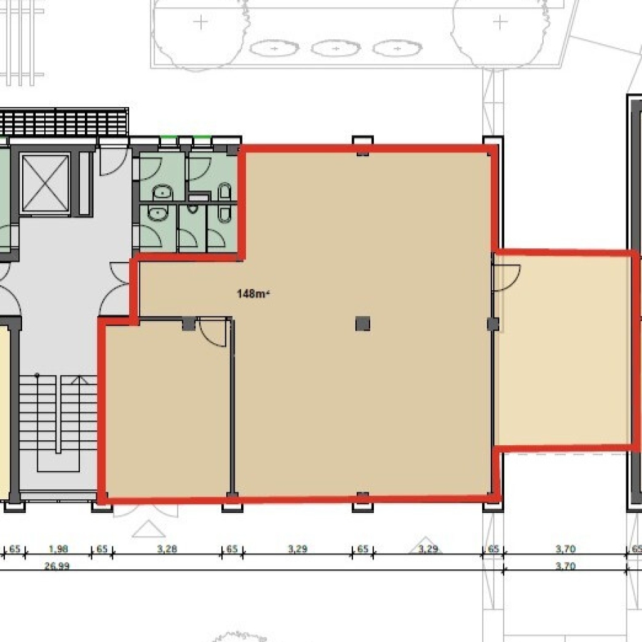
Bürofläche ca.148 m²
-
Gesamtfläche ca.148 m²
-
Verfügbar ab01.03.2026
-
Mieterprovision (gewerblich)Die Anmietung erfolgt für den Mieter provisionsfrei.
-
Kaution3 Bruttomonatsmieten per Bankbürgschaft
-
Miete pro m²13,70 EUR
Ausstattung / Merkmale
- ✓ DV-Verkabelung
- ✓ Tiefgarage
Objektbeschreibung
Kurzbeschreibung
"Schiersteiner Karrée", Schiersteiner Straße 84 – 86, 65187 Wiesbaden
Beschreibung
Die Bürofläche umfasst insgesamt ca. 148 m² und verfügt über einen großzügigen, hellen Open-Space-Bereich sowie zwei separat abgetrennte Büroräume. Der hintere Büroraum ist mit bodentiefen Fenstern ausgestattet und bietet eine sehr angenehme Arbeitsatmosphäre.
Die Sanitäranlagen befinden sich im Flurbereich und werden gemeinschaftlich mit dem Mieter der Einheit im 3. Obergeschoss rechts genutzt.
Ausstattung
- Behindertengerechter Zugang
- Neuer Bodenbelag nach Abstimmung mit dem zukünftigen Mieter
- Kabelkanäle mit CAT-5-Plus-Verkabelung
- BAP-gerechte Beleuchtung
- Elektronisch außenliegender Sonnenschutz
- WC-Anlage in gemeinschaftlicher Nutzung
Lage
Die Liegenschaft befindet sich direkt an der Schiersteiner Straße, angrenzend an das Europaviertel in verkehrsgünstiger Lage. Der Hauptbahnhof und die Fußgängerzone der Wiesbadener Innenstadt sind bequem in ca. 5 Fahrminuten erreichbar. Eine Bushaltestelle befindet sich direkt vor den Objekten. Die Schiersteiner Straße bietet über die A 643 einen direkten Anschluss (ca. 1 km) an die A 66 (Wiesbaden-Frankfurt) und an die A 60 (Mainz-Bingen-Koblenz).
Wenn Sie die Immobilien-Karte anzeigen, übertragen Sie Daten an Google Maps (Datenschutzerklärung).
65187 Wiesbaden, Deutschland (auf Google Maps ansehen)











