
Moderne Büroflächen im 1. OG in sehr guter Lage von Wiesbaden-Erbenheim **Provisionsfrei**
65205 Wiesbaden, Bürofläche zur Miete
Kontaktdaten
-
NameHerr Peter Langer
-
PositionLeiter Investment und Projektentwicklung
-
FirmaSteinbauer Immobilien GmbH
-
AnschriftBierstadter Straße 7
65189 Wiesbaden -
E-Mail
-
E-Mail
-
Telefon
-
Telefon
-
Mobil
-
Fax00496119895118
- zum Kontaktformular
Objektdaten
-
Objekt-ID170396/Eh3
-
ObjekttypenBüro/Praxis, Bürofläche
-
Adresse65205 Wiesbaden
(Wiesbaden (Erbenheim)) -
Etage1
-
Etagen im Haus1
-
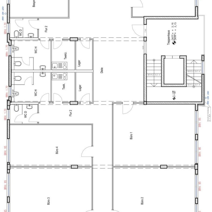
Bürofläche ca.584 m²
-
Gesamtfläche ca.584 m²
-
Teilbar ab231 m²
-
Baujahr1999
-
Verfügbar absofort
-
Miete pro m²8,90 EUR
Ausstattung / Merkmale
- ✓ Personenaufzug
Objektbeschreibung
Kurzbeschreibung
Kreuzberger Ring 52, 65205 Wiesbaden
Beschreibung
Es handelt sich hierbei um ein modernes und äußerst gepflegtes Bürohaus mit repräsentativem Entrée. Das Objekt wurde in qualitativ hochwertiger und vor allem energiesparender Bauweise erstellt. Die Fläche wird in einem renovierten Zustand übergeben. Änderungen an der bestehenden Raumaufteilung können bei Bedarf berücksichtigt werden.
Ausstattung
Hier nur einige Ausstattungsmerkmale:
- Tiefgarage und Außenstellplätze
- Fahrstuhl
- Barrierefrei
- Teeküche
- Teppichboden
- CAT-7-Verkabelung
- Glasfaserleitung
- Teppichboden, Fliesen
Sonstiges
Bürofläche im 1. Obergeschoss ca. 584 m² | Teilbar ab 231 m²
Weitere Büroflächen zur Anmietung:
Bürofläche im 2. Obergeschoss ca. 353 m² | Teilung möglich
Anmietung von Einzelbüros oder Co-Working Räume im EG möglich.
Bürofläche: 8,90 € / m² / mtl.
Nebenkosten: 2,60 € / m² / mtl.
PKW-Stellplatz: 55,00 € / Stück / mtl.
jeweils zzgl. MwSt. in gesetzlicher Höhe
Lage
Das Objekt liegt in Wiesbaden-Erbenheim inmitten des Gewerbemischgebiets Kreuzberger Ring. Im Umfeld sind Verwaltungsbüros der unterschiedlichsten internationalen und nationalen Unternehmen angesiedelt. Der Kreuzberger Ring hat eine sehr gute Anbindung an die BAB A66, A671. Gute Infrastruktur im Umfeld. Verschiedene Einzelhandelsunternehmen, Restaurants und der Ortskern Wiesbaden-Erbenheim sind fußläufig zu erreichen.
Wenn Sie die Immobilien-Karte anzeigen, übertragen Sie Daten an Google Maps (Datenschutzerklärung).
65205 Wiesbaden, Deutschland (auf Google Maps ansehen)






